物件情報
HOUSING
LUELLA小津 4号地
DATA
●所在地
高知県高知市小津町144-8
●地 目
宅地
●交 通
とさでん交通宝町 徒歩2分
4号地 46,600,000円

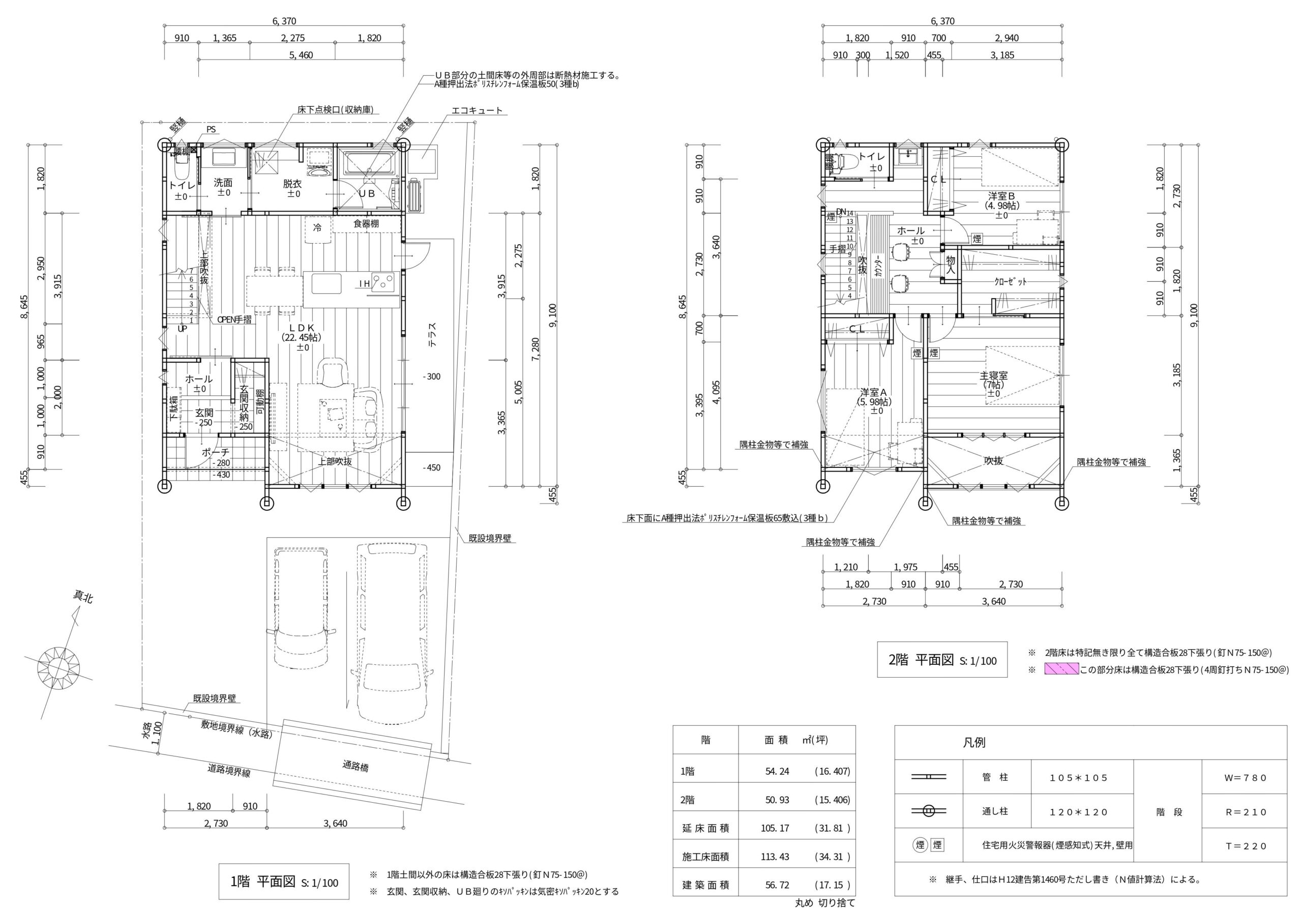
4号地号地 139.22㎡ 42.11坪 モデルハウス 建築中

延床面積105.17㎡ 31.81坪 3LDK

■宝町バス停徒歩2分 ■JR土讃線入明徒歩2分 ■高知県立国際中学校・高等学校徒歩5分 ■スーパー、コンビニ、クリニックとドラッグストアも近くにあり !周辺環境の良い立地です

フロート対面キッチン

対面収納スペース

カップボードも広々収納

横並び3口IHクッキングヒーター

上センサーと節水センサー2種類搭載

上センサーと節水センサー2種類搭載

隠して叶える美しき収納

パナソニック オフローラ

AIKA on bowl (2F洗面)

AIKA seam under bowl (1F洗面)

全自動お掃除タンクレストイレ アラウーノ S160(1F)

全自動お掃除タンクレストイレ アラウーノV(2F)

黒アイアンの階段で洗練された居住空間

階段上部 明るい採光

1F階段下カウンター(コンセント有)

2F共有フロアーカウンター(コンセント有)

スイッチは統一感あるPanasonicアドバンスシリーズ

陽射しが入るたっぷり収納WIC


主寝室には吹抜けとつながる小窓付き

照明もこだわりの上下間接光タイプ

白の吹抜けに光と風

ただいまぬくもり 明るい玄関

レインコートもそのまま収納


